Caractéristiques
Description
Immobilier.notaires et l'office notarial VIA NOTARIA vous proposent :
Maison à vendre en Immo-interactif
- - - - - - - - - - - - - - - - - - - - - -
--- VENTE EN IMMO INTERACTIF ---
L'Office Notarial VIA NOTARIA vous propose cette belle bastide provençale à rénover à votre goût, dans le quartier des Carabins.
Edifiée sur une parcelle de 580m2 entièrement clôturée, cette bastide de 114m2 élevée d'un étage sur rez-de-chaussée est composée comme suit :
- Au rez-de-chaussée : entrée, séjour, cuisine, cellier, W.C. ;
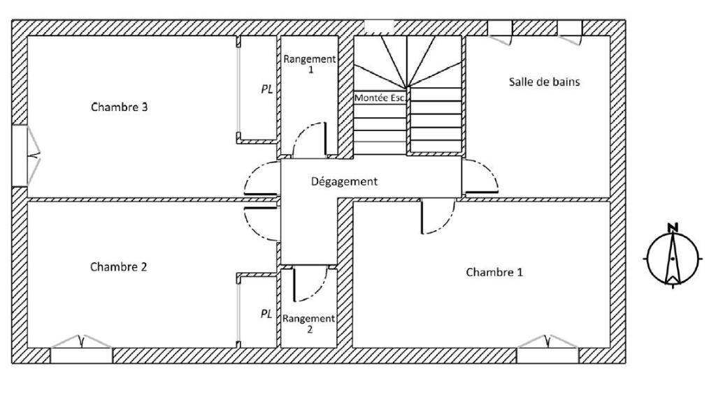
- A l'étage : trois chambres, dégagement, dressing, salle de bains avec W.C.
Deux garages sont accolés à la bastide.
Les atouts de ce bien : charme de l'ancien (pierres et poutres apparentes) / parcelle piscinable / un W.C. à chaque niveau / deux garages / prix attractif vous permettant d'adapter ce bien à votre goût.
Taxe foncière 2025 : 992,00€
Il s'agit d'une recherche d'acquéreur avec un système d'offres par enchères ascendantes au prix de départ de 150..000,00€. Ce n'est pas une vente aux enchères mais une vente amiable avec signature d'un avant-contrat (compromis) et d'un acte de vente définitif.
Pour pouvoir participer, il faut avoir visité le bien, remis les justificatifs de financement (simulation de crédit bancaire le cas échéant, relevés de comptes bancaire justifiant l'apport), et les pièces d'identité des acquéreurs.
Les visites se font sur rendez-vous vendredi 28 novembre 2025.
Les enchères auront lieux sur le site internet de immo-interactif du 02 décembre 14h30 au 03 décembre 14h30. La demande de participation doit être faire sur ce site internet.
Frais du publicité à la charge de l'acquéreur (à régler le jour de la signature de l'acte de vente) : 228,00€.
Pour plus de renseignements, contactez Julien DUVAUX au 07x48x73x46x57 ou sur julien.duvaux@13068.notaires.fr
- - - - - - - - - - - - - - - - - - - - - -
Conditions de la vente : Le bien est présenté en Immo-interactif à la hausse :
- 1ère offre possible : à partir de 150 000,00 euros (honoraires de négociation inclus)
- Offres suivantes : multiples de 3 000 euros.
- Réception des offres du 01/12/2025 14:30 au 02/12/2025 14:30 sur le site Immobilier.notaires.
Informations complémentaires
La maison est orientée au Sud.
Elle a été construite entre 1914 et 1947. Elle possède 3 chambres, une place de stationnement, un chauffage individuel.
La classe énergétique de la maison est E.
Le terrain qui y est rattaché a une surface de 579m².
Contacts
Carte (précision non garantie)